Подробная информация о данной недвижимости

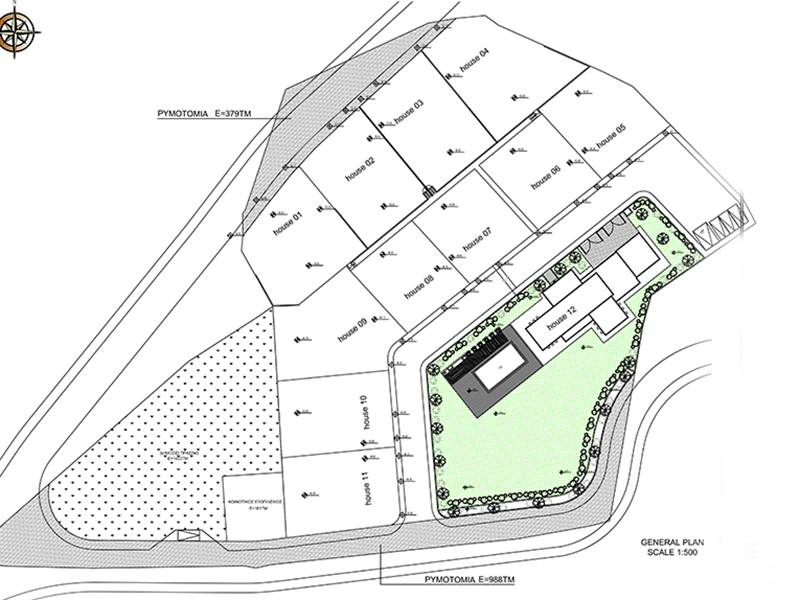
Проект Peony Residence, предлагает четыре типа 12 уникально спроектированных домов с 3 и 4 спальнями. Идеально обеспечивающий безопасный, спокойный и роскошный образ жизни для всех жителей.

В два  и в  три  уровня  дома с видами на море, каждый имеющий частную парковку и сад,  и в дополнение к большему пространству и комфорту  общая парковая зона и детская площадка.

Peony Residence House 12

Peony Residence is an 12 house project with options of 3 and 4 bedrooms offering four types of unique designs perfected to provide a secure, quiet and luxurious lifestyle for all its residents.

 

More information about this property

Peony Residence is an 12 house project with options of 3 and 4 bedrooms offering four types of unique designs perfected to provide a secure, quiet and luxurious lifestyle for all its residents.

The two and three level houses with full sea views, each host their own private parking and garden, in addition to sharing a green lawn, and a children’s playground for more space and comfort.

Architectural Plans & Property Details

Beds: 4
Covered Areas: 240 sq m
Covered Verandas: 103 sq m
Total Plot Area: 2144 sq m
Total Covered Areas: 429 sq m
Status: Sold

 
 

Project Photo Gallery

Project Location

    Пожалуйста, заполните контактную форму и мы свяжемся с Вами в ближайшее время.

    Пожалуйста, введите номер Вашего телефона
    Мы не сохраняем ваши персональные данные. Мы используем эту информацию только, чтобы связаться с Вами, в ответ на Ваш запрос.


     

    52, Amathountos Avenue, 4532, Ayios Tychonas, Limassol-Cyprus Tel: +357 25 82 82 00 | Fax: +357 25 31 99 80
    Web Development by Website Bakers

    Мы используем куки-файлы для идентификации посещаемых страниц. Мы также обмениваемся информацией о вашем использовании нашего сайта в социальных сетях, в рекламах и системах аналитики, которы могут объединить данные с другой информацией, которую вы предоставили им или которую они собрали в результате использования вами их услуг. Просмотреть политику конфиденциальности